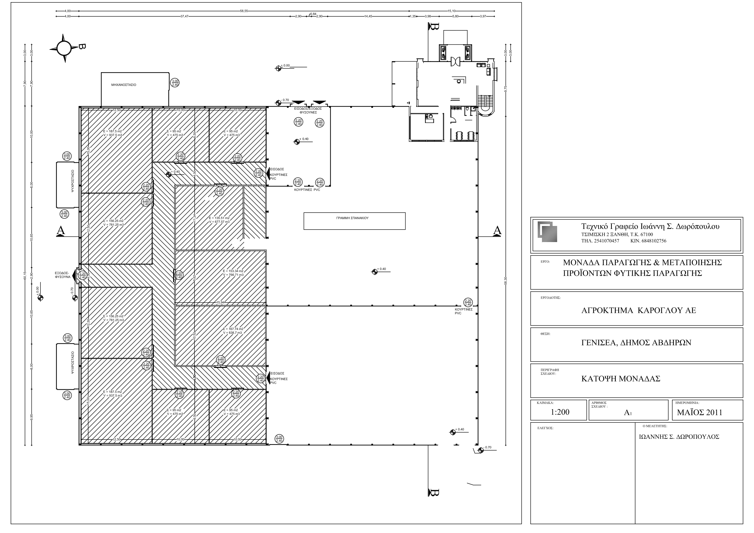
Agricultural Products Processing Unit

Image
Description

Agricultural Products Processing Unit, Agroktima Karoglou S.A

Client: Karoglou S.A.
Location: Xanthi, Greece
Date: 2012

Contract:
• Conceptual Design
• Structural Analysis & Design
• Seismic Analysis & Design
• Design and Detailing of Steel Connections
• 3D Cad Modelling
• General Arrangement Drawings Generation
• Assembly Drawings Generation
• Fabrication Drawings Generation
• Structural Design Reports

Technical Features:
• Steel Structures; 4910sqm
• Structural Type: 2D Trusses (36 Meters Span)
• Strip Foundation
• High Seismicity Area

3D Model Views

View Drawings

Loading...